QBS-1067. Magnifica vivienda sin apenas uso- terminada en (2008). Situada en el centro de Santa Pola- a sólo 150m de la playa- puerto y Clubs Náuticos- así como a 50m de la Plaza de la Glorieta y Fortaleza – Castillo.
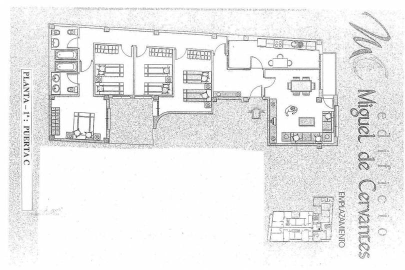
En edificio de 9 únicas viviendas (tres por planta)- en esquina de las Calles del Muelle y Cervantes. La vivienda cuanta con unos 127m2 construidos- repartidos en una planta principal- donde se encuentran un amplio recibidor- 1 dormitorio principal tipo suite con baño interior- 3 dormitorios dobles con baño común- salón-comedor- cocina independiente y balcón. En la planta superior del edificio- la propiedad dispone de un trastero de 4m2.Con un clima mediterráneo y sus 11 Km de playas orientadas al Sur- Santa Pola goza de una temperatura media anual de 20¬?C. Estos datos permiten considerar que la mayor parte del año el tiempo es primaveral- y hacen de este municipio un lugar idóneo para el ocio y recreo todo el año. Goza de excelentes conexiones con el aeropuerto de Alicante (AL…. Visítanos en TodopisosAlicante.
Hermoso Piso en Alicante ID 13119
Santa Pola, Alicante, España
